近年來,隨著科技的發展,競爭的加劇,生產力的與日提升,對軸承的性能越來越提出了更高的要求,特別是機床主軸,作為生產加工設備中的核心,就更是如此了。
因此,熟諳主軸的常用結構,了解其基本軸承配置及主要用途,是像小編這樣的軸承人必備的學科素質,通過此文,小編將自己掌握的相關知識歸納整理,希望可以幫到大家。
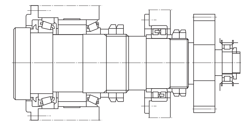
一、通用車床及大型車床齒輪驅動主軸

該類主軸及常用軸承配置如上圖所示,配置兩組圓錐滾子軸承,也可再增加一組雙列圓柱滾子軸承。
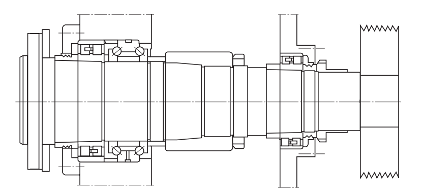
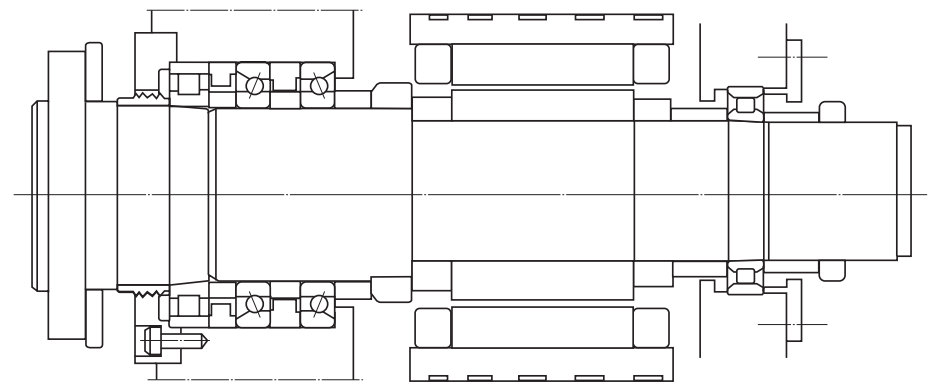
二、加工中心,CNC車床、鏜床、銑床等皮帶驅動常規轉速主軸

該類型主軸及常用軸承配置如上圖所示,可配置兩組雙列圓柱滾子軸承及一組雙列推力角接觸球軸承,通常采用脂潤滑。
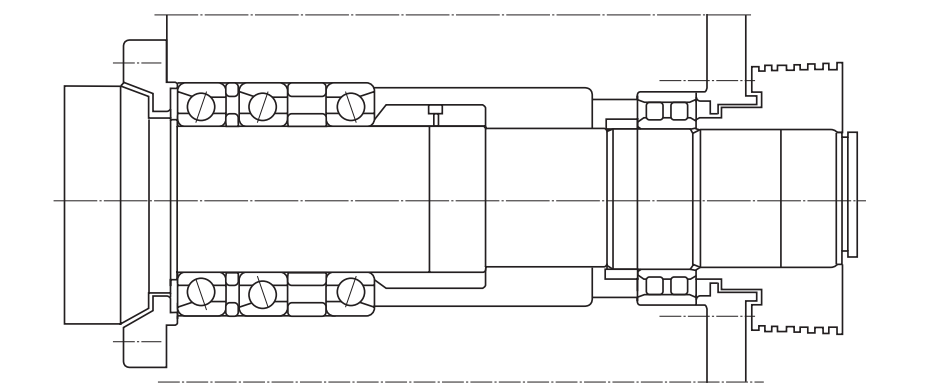
三、上面一個類型的高轉速應用

該類型主軸及常用軸承配置如上圖所示,配置一組雙列圓柱滾子軸承、一組單列圓柱滾子軸承及一組高速、軸向載荷用組配角接觸球軸承,通常采用脂潤滑。
四、上面一個類型的超高轉速應用

該類型主軸及常用軸承配置如上圖所示,可配置一組雙列圓柱滾子軸承及一組DBT組配的高速、軸向載荷用三列角接觸球軸承,通常采用脂潤滑。
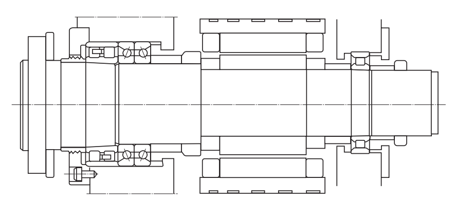
五、加工中心,CNC車床、銑床等內置電機驅動常規轉速主軸

該類型主軸及常用軸承配置如上圖所示,配置一組雙列圓柱滾子軸承、一組單列圓柱滾子軸承及一組高速、軸向載荷用組配角接觸球軸承,通常采用脂潤滑及油氣潤滑。
六、上面一個類型的高轉速應用

該類型主軸及常用軸承配置如上圖所示,可配置兩組單列圓柱滾子軸承及一組高速、軸向載荷用組配角接觸球軸承,通常采用脂潤滑及油氣潤滑。
七、超高轉速,立式電機驅動加工中心主軸

該類型主軸及常用軸承配置如上圖所示,配置一組DTBT組配的角接觸球軸承及一組帶球軸套的單列或雙列角接觸球軸承,通常采用脂潤滑及油氣潤滑。
八、超高轉速,電機驅動加工中心主軸

該類型主軸及常用軸承配置如上圖所示,配置一組DTBT組配的角接觸球軸承及一組單列或雙列圓柱滾子軸承,通常采用脂潤滑及油氣潤滑。
九、高剛性、超高轉速,電機驅動加工中心主軸

該類型主軸及常用軸承配置如上圖所示,配置一組DTBT組配的角接觸球軸承、一組單列或雙列圓柱滾子軸承及一組預緊切換軸承單元,通常采用油氣潤滑。
十、小型加工中心、車床、磨床電機驅動主軸

該類型主軸及常用軸承配置如上圖所示,配置兩組DT組配的角接觸球軸承,通常采用脂潤滑及油氣潤滑。
十一、皮帶驅動磨床主軸

該類型主軸及常用軸承配置如上圖所示,配置兩組DT組配的角接觸球軸承,通常采用脂潤滑、油氣潤滑及油霧潤滑。

